PELISSIMMO Agence
Vendu

Appartement 3 pièce(s) 2 chambre(s) 78 m²

Marseille (13005)
269 000 € Référence 98430

A propos de ce bien

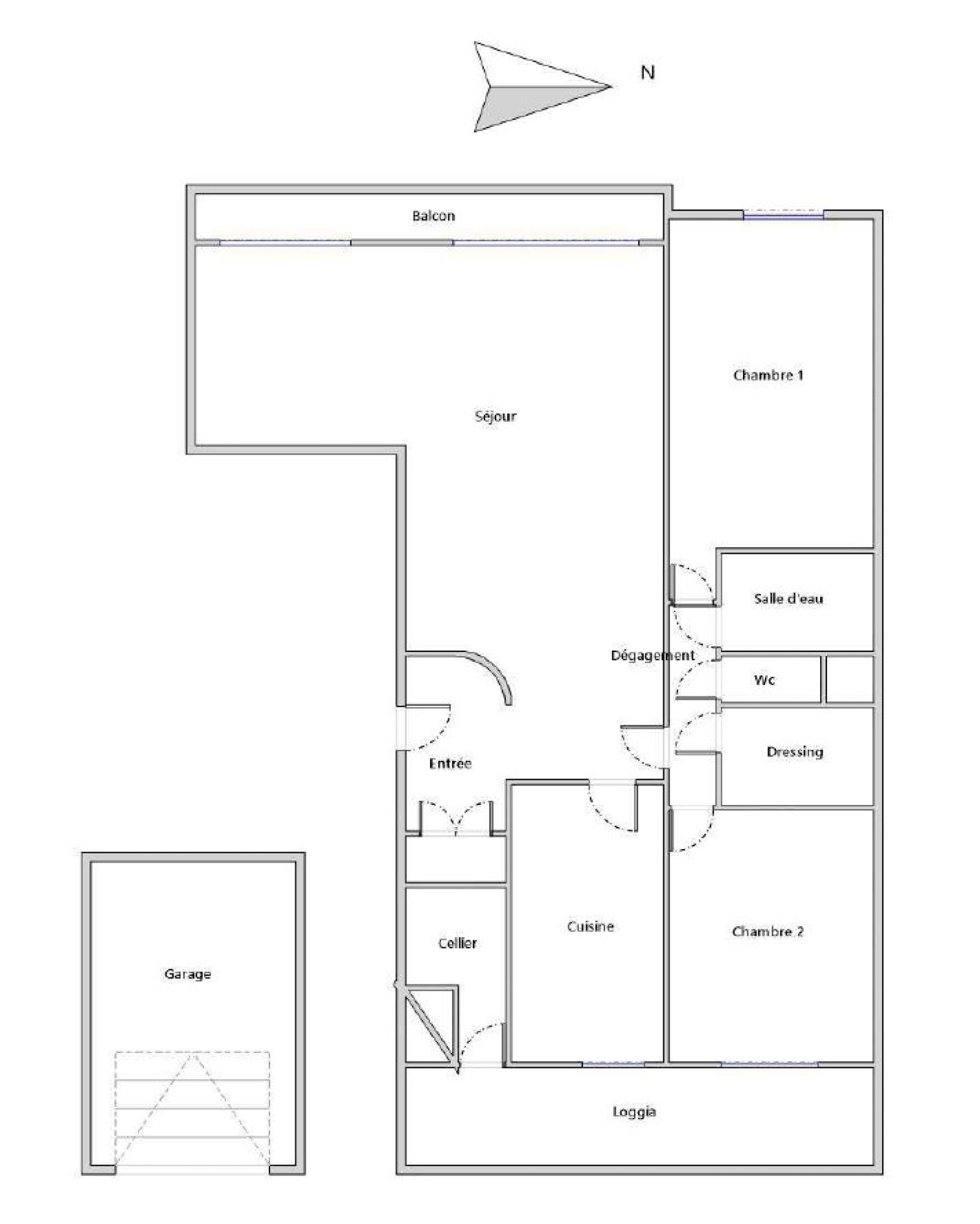
Au 4ème étage d’un immeuble semi-récent, rénové en 2020, ce T3 traversant EST/OUEST présente une configuration très pratique et agréable à vivre.

Son entrée de plus de 4m² est équipée d’un placard et laisse la place pour davantage de rangements. Son salon de 32m² orienté plein OUEST est lumineux tout l’après-midi et offre un espace salle à manger. L’ensemble de la pièce s’ouvre sur un balcon de 6m².

Côté cuisine, une rénovation a été faite en 2020 pour profiter pleinement de ses 8m² qui donnent accès à une loggia de plus de 9m². Cette loggia donne un espace de vie bien isolé grâce à son double vitrage et sa structure en aluminium. Pour votre confort, un cellier de presque 3m² est équipé pour recevoir une machine à laver le linge.

Coté nuit, un dégagement donne accès à une première chambre de 13m² donnant sur la loggia, un dressing de 2,7m², des WC indépendants, une salle d’eau de 3,5m² et une 2ème chambre de 10,5m².

Rénovation générale en 2020 : sols, murs, plafonds, cuisine, salle d’eau, tableau électrique, chaudière à gaz, climatisation réversible dans le salon et dans une chambre.

Des travaux d’étanchéisation du toit viennent d’êtres réalisés.

Charges trimestrielles : 480€

Possibilité d’acheter un box fermé en sus dans l’immeuble.


Les informations sur les risques auxquels ce bien est exposé sont disponibles sur le site Géorisques

Caractéristiques de ce bien

  • Surface 78 m²
  • carrez 78 m²
  • 2 chambre(s)
  • 1 salle(s) d'eau
  • Chauffage individuel : air pulsé (electrique)
  • Chauffage individuel : chaudière (gaz)
  • 1 garage(s)
  • exposition Est-Ouest
  • 4ème étage
  • ascenseur
  • vue Dégagée
  • balcon
  • interphone

Diagnostics énergétiques

DPE
GES

Montant estimé des dépenses annuelles d'énergie pour un usage standard est compris entre 940 € et 1 330 € . Prix moyens des énergies indexés sur les années 2021, 2022 et 2023 (abonnements compris).

Informations financières

Prix de vente honoraires TTC inclus 269 000 €

Informations de copropriété

Copropriété Oui
Lot n° 16
Nombre de lots 24
Plan de sauvegarde Non
Statut du syndic Pas de procédure en cours

Calcul des mensualités

* Champs obligatoires